
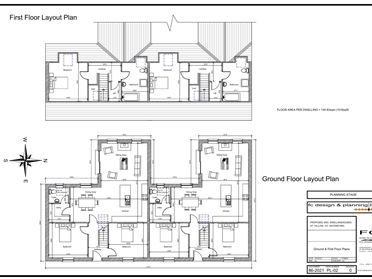
Brian Gleeson Property is delighted to present to the market a niche residential opportunity, benefiting from full planning permission for two semi-detached dormer-style three-bedroom homes.
This ready-to-go site offers builders or developers an opportunity to immediately commence construction on two modern, A-Rated homes on Old Road Barrack Street, Tallow, Co Waterford.
The town of Tallow offers a vibrant community feel and a strong local infrastructure, including the primary national school, restaurants, cafés, shops and local sporting communities such as Tallow GAA clubs.
For coastal adventures, the bustling seaside towns of Dungarvan and Youghal are just a 30 minute drive, while Waterford City and Cork City are both reachable within an hour, making this an ideal home for commuters.
For maps and particulars contact Brian Gleeson Property